Andrea van der Ploeg, Projectleider Locatievernieuwing:
“Voorheen was er een wachtkamer voor de huisartsenpost en voor de SEH, maar straks komen patiënten hier allemaal terecht in één wachtkamer. Daar is bewust voor gekozen, mensen mankeren iets, die hebben een klacht en het is lang niet altijd duidelijk waar die klacht het beste behandeld kan worden. Of dat nu echt iets voor een spoedeisende hulp arts is, of voor een huisarts. Hierom gaan we alle acute zorg nu dus op één plek behandelen. Dan kan er hier bepaald, of veranderd, worden waar mensen het beste behandeld gaan kunnen worden. Intern kunnen de artsen nu schakelen en samen beoordelen als de patiënt toch beter geholpen kan worden op de andere afdeling.”
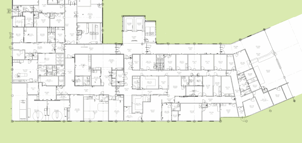
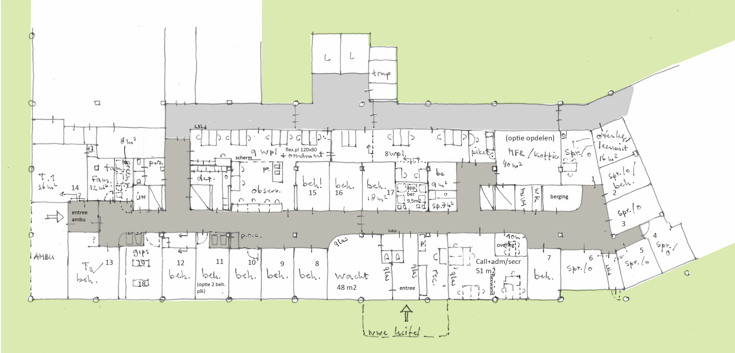
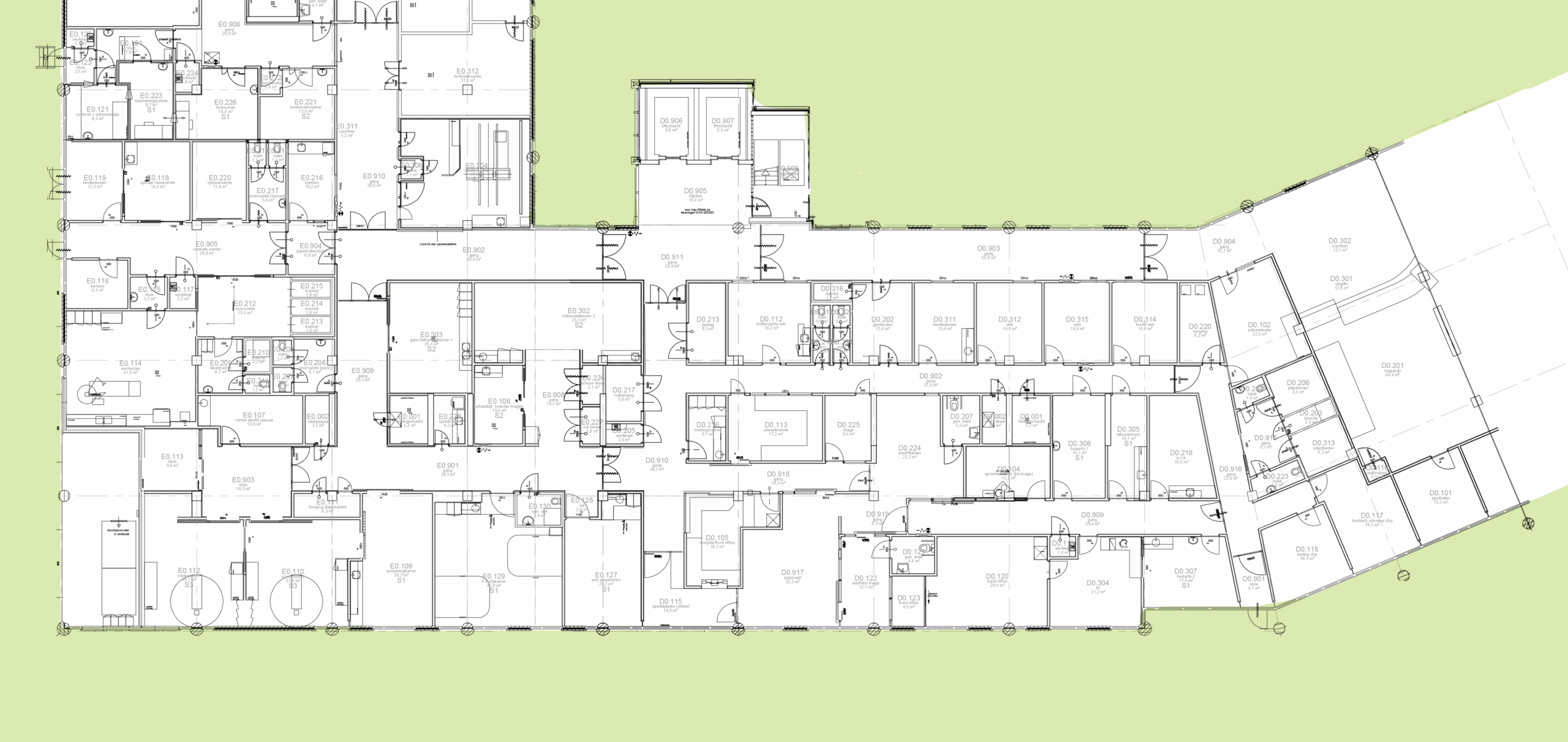
Slim herontwerp binnen bestaande bouw
De verbouwing betrof een ingreep binnen de bestaande structuur, waarbij we slimme keuzes hebben gemaakt op het gebied van ruimtegebruik, samenwerking en duurzaamheid. Uitgangspunt was om zoveel mogelijk waarde uit de bestaande situatie te behouden. Door nauw samen te werken met verschillende partijen en de nadruk te leggen op hergebruik, konden we binnen de fysieke kaders een heldere en efficiënte indeling realiseren.
Flexibel harmonica-model
Een belangrijk ontwerpprincipe is het zogeheten harmonica-model. Hierdoor kunnen SEH en HAP bij piekmomenten elkaars ruimtes flexibel inzetten, zonder elkaar te hinderen. Om dit goed te onderbouwen, hebben we uitvoerig onderzoek gedaan naar de bezetting op verschillende dagen en tijdstippen. Op basis van deze analyses hebben we het aantal benodigde vierkante meters scherp bepaald en optimaal benut.
Heldere structuur en routing
De vrijgespeelde ruimte maakte plaats voor een brede centrale gang die als ruggengraat door het plan loopt. Deze verbindt de entree, wachtruimte en het observatieplein, en zorgt voor overzicht, oriëntatie en rust. Patiënten en medewerkers profiteren hierdoor van een logische routing en korte looplijnen.
Duurzaam en kostenefficiënt
Duurzaamheid speelde een centrale rol in dit project. Door zoveel mogelijk onderdelen uit de bestaande situatie te behouden — zoals wanden, deuren, pendels en zelfs de luifel (die verplaatst is in plaats van vervangen) — hebben we de milieu-impact aanzienlijk beperkt. De nieuwe indeling is ontwikkeld met respect voor de bestaande structuur, maar resulteert toch in een frisse, toekomstgerichte afdeling.
Beleving en materiaalgebruik
Samen met de gebruiker hebben we keuzes gemaakt betreffende het interieur. De groene accenten en warme ondersteunende tinten brengen kalmte in een omgeving die vaak spanning kent. Ook akoestische eisen zijn zorgvuldig meegenomen, waardoor de omgeving niet alleen functioneel, maar ook comfortabel is voor zowel patiënten als personeel.
Onze aanpak
Onze ontwerpaanpak bewijst dat duurzaamheid en kwaliteit hand in hand kunnen gaan, zelfs binnen de beperkingen van bestaande bouw. Door goed te luisteren naar gebruikers, slim te ontwerpen en strategisch te hergebruiken, hebben we een efficiënte, flexibele en gastvrije spoedzorgomgeving gerealiseerd.


Projectgegevens
Opdracht
Renovatie Spoedeisende hulp & Huisartsenpost
Plaats
Schiedam
Opdrachtgever
Franciscus Gasthuis & Vlietland
Projectfase
Opgeleverd 2025
Aannemer
Metz Nederland B.V.
Advies
Installatieadviesbureau Halmos
Team
Liesbeth Wesseling, Merlinda van de Bijl, Drasko Turcinovic, Harm Mudde, Christian Meindl, Thomas Pronk










